B
Meld interesse
Pris
20 700 000
BRA-i
214
Soverom
4,5
Mulighet for hybel
Ja
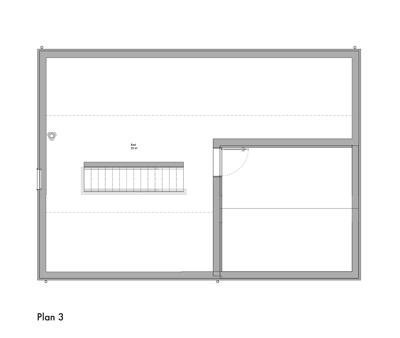
Alternativ plantegning - mulighet for hybel
MELD INTERESSE
Fyll inn navn
Fyll inn telefonnummer
Fyll inn e-post
Jeg ønsker å bli kontaktet i samtykke med denne
personvernerklæringen
Send
BOLIGVELGER
HYBEL
GALLERI
DOKUMENTER
MELD INTERESSE
Powered by Plyo
Tilbake til Boligvelger